 |
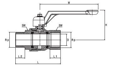
Dimensions in mm
| 594 MF | Rp | D | L | L1 | L2 | SW | H | W |
| 59404 MF |
1/2” |
15 |
69 |
15 |
13,2 |
26 |
48 |
100 |
| 59406 MF |
3/4” |
20 |
77 |
16,3 |
14,5 |
31 |
51 |
100 |
| 59408 MF |
1” |
25 |
90 |
19,1 |
16,8 |
40 |
59 |
120 |
| 59410 MF |
1 1/4” |
32 |
104 |
21,4 |
19,1 |
50 |
64 |
120 |
| 59412 MF |
1 1/2” |
40 |
116 |
21,4 |
19,1 |
55 |
85 |
150 |
| 59416 MF |
2” |
50 |
141 |
25,7 |
23,4 |
70 |
93 |
150 |
|